Conocé el proyecto

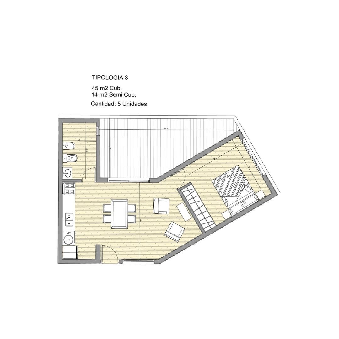
Te invitamos a navegar las tipologías de La Maltería seleccionando los botones ubicados en el margen izquierdo perteneciente a cada ambiente.

descubrí La Maltería

Cada diseño está pensado para brindar comodidad y estilo, optimizando el uso del espacio con acabados modernos y funcionales.

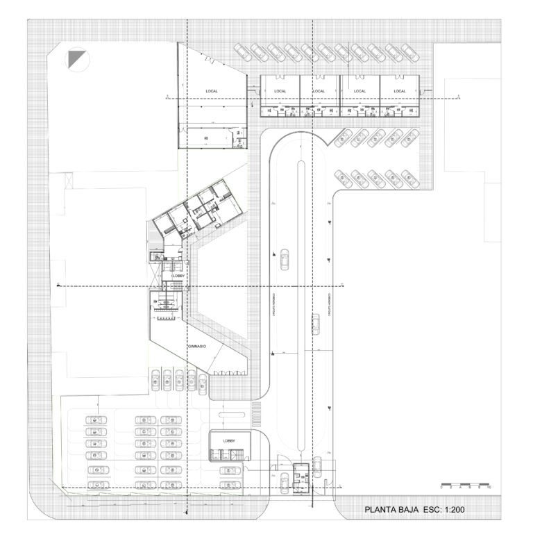
LOCALES COMERICALES

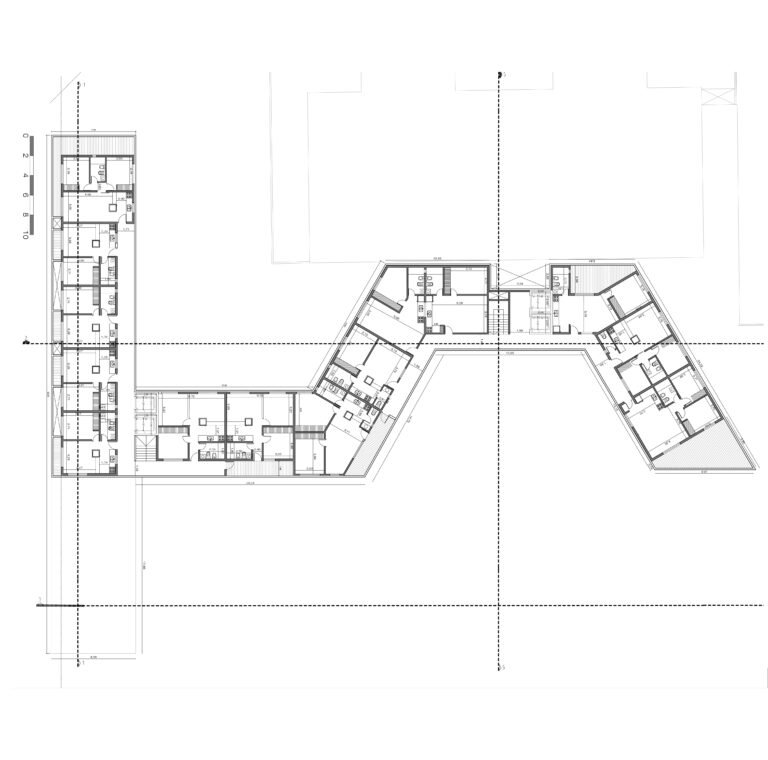
DEPARTAMENTOS 2 AMBIENTES

DEPARTAMENTOS 3 AMBIENTES

COCHERAS

GIMNASIO

Scroll to Top